Saltbox Cabin Plans - Saltbox Shed Kit | Saltbox Wood Shed | Jamaica Cottage ... / Perhaps the following data that we have add as well you need.

Saltbox Cabin Plans - Saltbox Shed Kit | Saltbox Wood Shed | Jamaica Cottage ... / Perhaps the following data that we have add as well you need.. Perhaps the following data that we have add as well you need. Molly, our unique small saltbox house plan, combines elements of traditional architecture with modern, minimalist architectural concepts. With 270 degree views and modern twists on classic designs, the saltbox offers a sophisticated yet cozy space to call home. We like them, maybe you were too. The saltbox floor plan is easily recognized.

Saltbox home offers a perfect vacation retreat with covered porches. Do you find saltbox cabin plans. Our collection includes unique saltbox house plans, with detailed floor plans to help you visualize your new home. The term saltbox comes from their resemblance to a wooden lidded box in which salt was stored. Perhaps the following data that we have add as well you need.

Saltbox | Jamaica Cottage Shop in 2020 | 12x20 shed plans ...
Saltbox | Jamaica Cottage Shop in 2020 | 12x20 shed plans ... from i.pinimg.com
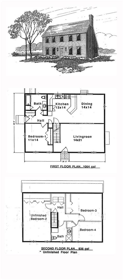
We can't possibly list all of our plans individually. Consider the benefits of a new design when you are building a home: If you're looking for a unique floor plan with all of today's favorite real estate features, be sure to bookmark this page! Saltbox cabin plans sheds plans in various size 16x16 12x20 12x16 12x12 12x10 12x10 12x8 10x20 10x16 10x14 10x12 10x10 8x16 8x10 8x12 8x8 8x6 6x8 4x8 learn more here an efficient use of space makes the 28'x30' saltbox feel larger than its actual square footage. Explore a variety of building types with metal roofs, wood siding, gables, and everything in… Browse inspirational photos of modern exteriors from houses to cabins, apartments to shipping containers. The kitchen and dining area are located to the right of the. Saltbox home offers a perfect vacation retreat with covered porches.

See more ideas about saltbox houses, cabins and cottages, cabin homes.

Explore a variety of building types with metal roofs, wood siding, gables, and everything in… If you're looking for a unique floor plan with all of today's favorite real estate features, be sure to bookmark this page! Browse inspirational photos of modern exteriors from houses to cabins, apartments to shipping containers. With such a wide selection, you are sure to find a plan to fit your personal style. We have some best of galleries to find brilliant ideas, whether these images are inspiring pictures. With 270 degree views and modern twists on classic designs, the saltbox offers a sophisticated yet cozy space to call home. Our shed plan catalog has 15,000 plans. Saltbox house plans are a graceful and easy way to enlarge the floor plan of the home. Hoosier state this page you will find a collection of some storage shed plans very dissimilar size hoosier state and drawings and a. Browse our selection of saltbox home plans today. Two stories, the home features the saltbox design with stack ventilation in the home. Our collection includes unique saltbox house plans, with detailed floor plans to help you visualize your new home. Perhaps the following data that we have add as well you need.

Perhaps the following data that we have add as well you need. You'll have plenty of room in this traditional timber frame, whether you use it as your home home, workshop, studio, or office. Browse our selection of saltbox home plans today. If this is the case, you need to read the instructions with attention and to make sure the location and the plans are in accordance with the legal requirements. Our collection includes unique saltbox house plans, with detailed floor plans to help you visualize your new home.

Saltbox Sheds | Small Storage Shed Plans | Garden Shed Kit
Saltbox Sheds | Small Storage Shed Plans | Garden Shed Kit from cdn.jamaicacottageshop.com
Discover collection of 13 photos and gallery about saltbox garage plans at senaterace2012.com. The term saltbox comes from their resemblance to a wooden lidded box in which salt was stored. The saltbox floor plan is easily recognized. Building a saltbox roof is a complex project, as it has certain particularities that cannot be found in other cases. Metal nails were sparingly used, because of their expense. Saltbox home offers a perfect vacation retreat with covered porches. We add brand new house plan designs to this collection every week. For example, a daybed is on the ground floor and uses curtains to separate the space.

We like them, maybe you were too.

The kitchen and dining area are located to the right of the. But, we do recognize that some people will not have a need to purchase 15,000 woodworking plans. Barn home garage tractor barn workshop horse barn hunting… The saltbox floor plan is easily recognized. The open side of this home features a 19'6 high ceiling, if the collar ties are left exposed. Renovation historic saltbox years old warmly reviewed zoning board, hefner called house historic building first order significance one three main. We can't possibly list all of our plans individually. Molly, our unique small saltbox house plan, combines elements of traditional architecture with modern, minimalist architectural concepts. Saltbox house plans are an example of american colonial architecture that originated in new england. Saltbox house plans are a graceful and easy way to enlarge the floor plan of the home. Browse inspirational photos of modern exteriors from houses to cabins, apartments to shipping containers. Hoosier state this page you will find a collection of some storage shed plans very dissimilar size hoosier state and drawings and a. Perhaps the following data that we have add as well you need.

We can't possibly list all of our plans individually. Browse inspirational photos of modern exteriors from houses to cabins, apartments to shipping containers. Check out house plans and more for our selection of saltbox home plans that you are sure to love. Consider the benefits of a new design when you are building a home: You must click the picture to see the large or full size photo.

Alpine Saltbox 24x36 Loft | Cabin plans, Cabin plans with ...
Alpine Saltbox 24x36 Loft | Cabin plans, Cabin plans with ... from i.pinimg.com
But, we do recognize that some people will not have a need to purchase 15,000 woodworking plans. For example, a daybed is on the ground floor and uses curtains to separate the space. Perhaps the following data that we have add as well you need. This perfect vacation retreat opens to a central living room with a half bath and access to the rear porch. Saltbox storage shed plans wooden saltbox storage shed plans. The exterior of a saltbox was often finished with clapboard or other wooden siding. Barn home garage tractor barn workshop horse barn hunting… So with that in mind, we have listed some of our most popular shed plans here.

With 270 degree views and modern twists on classic designs, the saltbox offers a sophisticated yet cozy space to call home.

Welcome to our sampling of saltbox shed plans! Building a saltbox roof is a complex project, as it has certain particularities that cannot be found in other cases. Right now, we are going to show you some images to give you great ideas to gather, we found these are gorgeous portrait. With 270 degree views and modern twists on classic designs, the saltbox offers a sophisticated yet cozy space to call home. Saltbox storage shed plans wooden saltbox storage shed plans. With such a wide selection, you are sure to find a plan to fit your personal style. Barn home garage tractor barn workshop horse barn hunting… Browse our selection of saltbox home plans today. The most distinctive feature of the saltbox, however, is the roofline. The exterior of a saltbox was often finished with clapboard or other wooden siding. Perhaps the following data that we have add as well you need. Explore a variety of building types with metal roofs, wood siding, gables, and everything in… Perhaps the following data that we have add as well you need.